The X object
This private SPA center embodies the SpaPlanet philosophy: natural materials, precise engineering, and a carefully crafted atmosphere of restoration. Every element is designed to bring nature and technology into perfect balance.
The design combines wild-cut cedar slabs, natural stone, and aromatic juniper, creating an immersive organic environment with soft lighting that enhances the natural textures of wood and stone.
The SPA area includes:
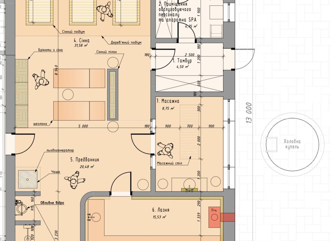
— Steam bath infused with cedar and juniper aroma, equipped with the Climatic Steam system for a stable microclimate and rich, gentle steam.
— Sauna & massage room with a signature SpaPlanet table featuring the Second Breath System — controlled fresh air supply during steaming and massage rituals.
— Relaxation room in “Hay Style” — walls and beds made of eco-treated natural hay that fills the air with a pure meadow aroma.
— Cooling area with ice generator and 50L pouring buckets, providing instant contrast and body refreshment.
Hidden engineering solutions by SpaPlanet ensure perfect balance of temperature, humidity, and airflow. This is more than a Spa — it’s a living space where nature meets technology, inspiring energy, calm, and harmony.
Let’s start
Tell us about your dream and we will offer you a solution.